Home
Vliegenraam
Vliegendeur
Schuifvliegendeur
Plissé vliegendeur
Realisaties
Veel gestelde vragen
Contact
Facebook 
Sitemap
Copyright & Privacy
Francais
contact@vliegenraam.be
BE0685369336
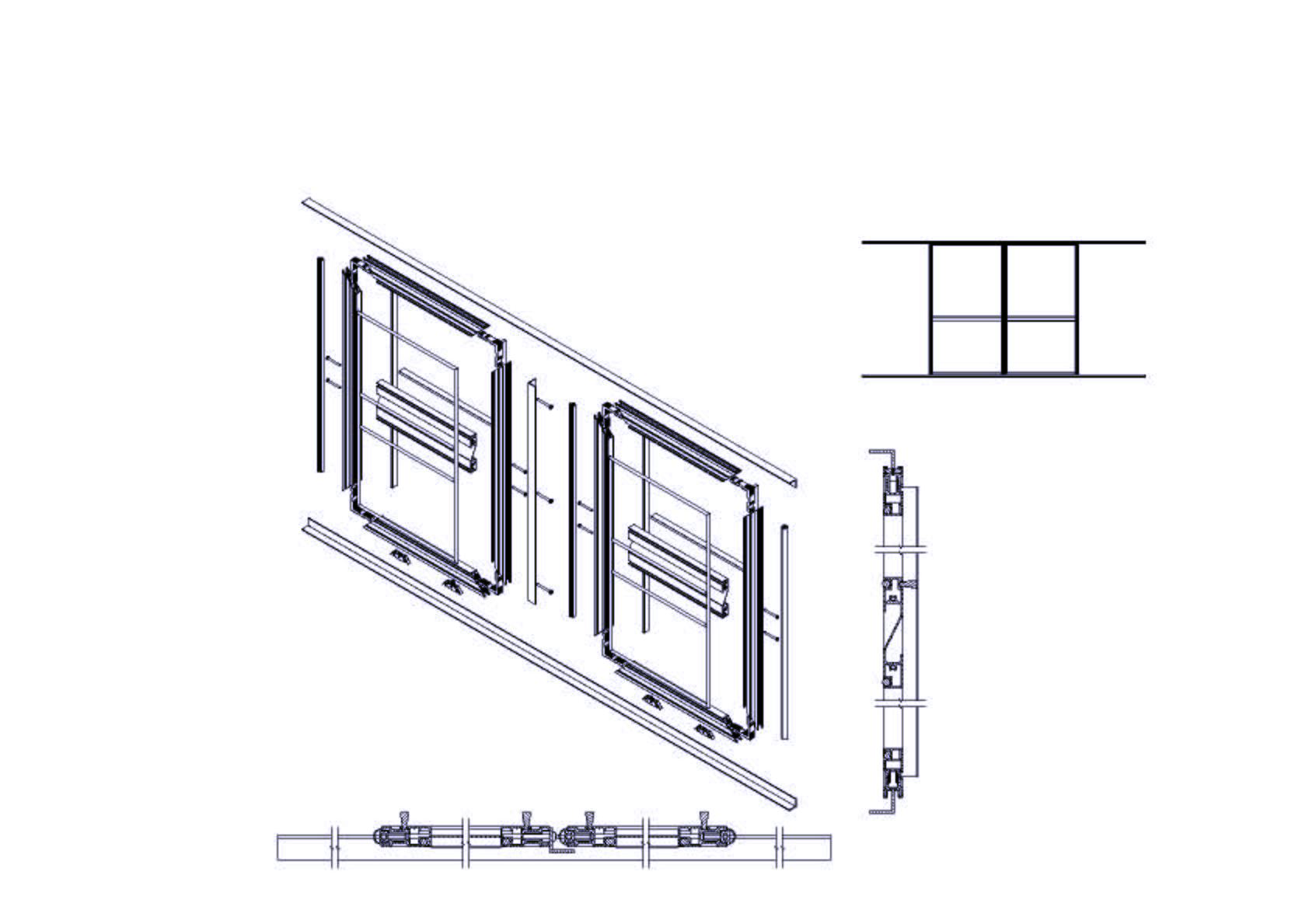
Detailtekening Schuifvliegendeur (Smal systeem 20 mm)
HOME